The BIG BUILD is all about continuing to ensure that Peterborough City Rowing Club provides its members and visitors with the best possible facilities for the sport.
The present clubhouse was built in 1983 and although it has been extended in the past the time has come to extend and improve it further to cope with the expanding membership and hugely successful regattas.
Planning permission was obtained in 2019 and a fundraising appeal to raise a total of £1 million was started at that time. Unfortunately the Covid pandemic has led to a delay in the major building works but the club has been able to undertake the provision of toilet, changing and shower facilities for disabled athletes in 2022.
The estimated cost of £1 million sounds daunting but our Treasurer, Hugo Spiegl, has been careful with our resources in recent years and we have some funds in hand. These funds include a very substantial bequest by Rolls Pollard, who was Chairman of the club for 37 years and a lifelong supporter, and funds raised before Covid through the Buy a Brick campaign. The club has some £350,000 towards the £1 million needed.
Now that life has returned to “normal” we are restarting the work of making funding applications to trusts and foundations and making approaches to local companies. We are looking at other fundraising activity such as reviving the “buy-a-brick” campaign and potential regatta sponsorship.
More ideas will be welcome and if you have any suggestions please talk to John Canton.
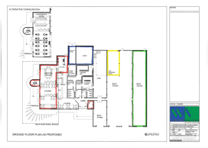
THE PLAN
The improvement plans have several elements as follows:-
- Extension to provide more boat storage (green).
- Replacement of the Conservatory, which is suffering from settlement, with a larger multi-purpose room with improved kitchen facilities behind (red).
- Gym extension in the form of both an enlarged ergo floor and an extra training space to the rear. This extension will also include an equipment store. (blue and yellow).
- Toilet and shower facilities for disabled athletes (brown) – work completed 2022.
- Refurbishment of the existing toilets, showers and changing rooms.
- Improved car park with additional spaces.
- Redesign of the grounds around the club to accommodate the new extensions.

The club Trustees are very keen to work towards builders being on site to construct at least part of the building improvements in September 2023.

